Home Resources Blog Countertops ▾ Cabinets ▾ Free Consult
← Back to Blog
Free Resource · Kitchen Remodeling

How to Measure Your Kitchen for a Remodel in Palm Beach County

Professional measuring a kitchen for remodel in Palm Beach County — South Florida Kitchen and Bath Design
💡
You don't need to be perfect. Your measurements help us give you a faster, more accurate estimate. When we visit for your free in-home consultation — anywhere in Palm Beach County — we'll professionally verify everything before work begins.

What You'll Need

📏
Tape measure (25ft+)
✏️
Pencil & eraser
📄
Paper or graph paper
📱
Phone for photos
👤
Second person (helpful)
01

Sketch Your Kitchen First

Before you pick up the tape measure, draw a rough bird's-eye view of your kitchen on paper. It doesn't need to look perfect — just a simple outline showing the walls, where the doors and windows are, and where the main appliances sit.

Label each wall with a letter: Wall A, Wall B, Wall C, Wall D — starting from the wall with your sink and going clockwise. This keeps everything organized when you start writing numbers down.

Take a few photos of each wall as you go. Photos give our team context that measurements alone can't capture — lighting, existing finishes, outlet locations.

Tip: If you have a kitchen island or peninsula, sketch that too. Note whether it's permanent or moveable — this affects how we plan the layout.
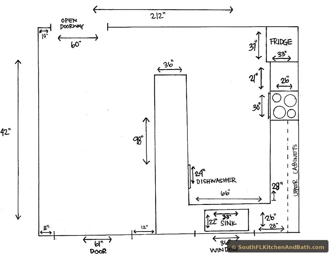
Kitchen floor plan measurement diagram example for Palm Beach County remodel — South Florida Kitchen and Bath Design

Example kitchen measurement sketch — this is the level of detail that helps us give you an accurate estimate.

02

Measure Each Wall

Measure each wall from corner to corner. Take measurements at counter height — about 36 inches from the floor — rather than at floor level. Floors can be uneven, and this height is most relevant for cabinet planning.

Write each total wall length on your sketch. Then go back and break each wall into segments: from a corner to the edge of a window, across the window opening, then from the window to the next corner. Both the total and segment measurements are useful.

Tip: Measure twice, write once. Even a half-inch difference matters for cabinet sizing — especially for base cabinets that run the full length of a wall.
03

Windows, Doors & Ceiling Height

For each window and door in your kitchen, record:

What to MeasureWhy It Matters
Window width (trim to trim)Affects upper cabinet placement on that wall
Window height (trim to trim)Determines how tall upper cabinets can be
Floor to bottom of windowImportant for countertop and backsplash planning
Door width (trim to trim)Affects traffic flow and nearby cabinet placement
Which way the door swingsA door swinging in can block a cabinet from opening

Ceiling height: Measure in at least three spots — center of the room and two corners. South Florida homes, especially in older communities like Boca Raton, Delray Beach, and Lake Worth, can have ceilings that vary by an inch or more. Always use the smallest measurement.

Note: If your kitchen has a soffit (the boxed-in area above the cabinets), measure its height and how far it protrudes from the wall. Soffits are one of the most common things we need to address during a kitchen remodel.
04

Appliances & Fixtures

You don't need exact appliance dimensions — just record the space each one sits in and its location on your sketch:

ApplianceWhat to Record
RefrigeratorWidth of the opening it sits in
Stove / RangeWidth, and which wall it's on
DishwasherWidth of the opening (usually 24")
SinkWidth and distance from the nearest corner
Hood / Range ventLocation and which wall
Tip: Also note any electrical panels, gas lines, or visible pipes on walls you're considering changing. These affect what's structurally possible during your remodel.
05

Common Mistakes to Avoid

Download the Free Kitchen Worksheet

3-page printable form — kitchen measurements, bathroom measurements, and a full-page dot-grid sketch area. Fill it out and email it back for your free estimate.

PDF · 3 pages · Print-friendly · Free

Email your completed form to southflkitchenandbath@gmail.com — we respond within 2 hours.

Prefer we come to you?

We offer free in-home consultations across all of Palm Beach County — Boca Raton, West Palm Beach, Wellington, Delray Beach, Jupiter, and everywhere in between. No obligation.

Book a Free Consult

Also available

Planning a bathroom remodel too?

See our bathroom measuring guide with fixture-specific measurements.

Bathroom Guide →

Your Local Team

Kitchen Remodeling Across Palm Beach County

South Florida Kitchen & Bath Design specializes in kitchen remodeling, custom cabinetry, and countertop installation across every city in Palm Beach County — including Boca Raton, West Palm Beach, Delray Beach, Boynton Beach, Wellington, Palm Beach Gardens, Jupiter, Lake Worth, Greenacres, Royal Palm Beach, and Lantana. Free in-home consultations, no travel fees.